
Architektur
- Adresse: Bachstrasse 12, 96163 Gundelsheim
- Bauherr: Gemeinde Gundelsheim
- Architekten: Schlicht Lamprecht Architekten, Schweinfurt
- Fertigstellung: 2020
- Konstruktion: Holzbauweise (Neubauten)
- Presseanfragen: Cornelia Hellstern post@corneliahellstern.de, 0179/2086117
- Gemeinde Gundelsheim: Madeleine Scholz / Städtebauförderung, scholz@gemeinde-gundelsheim.de, 0951/94444-21
Die neue Bücherei Gundelsheim

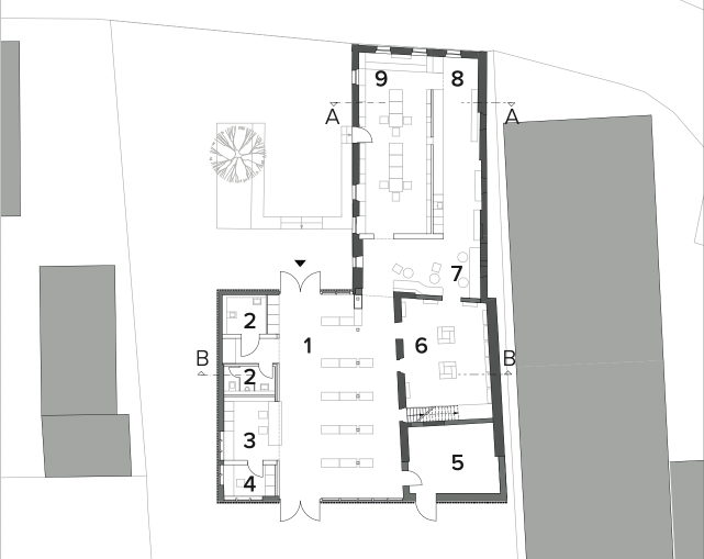
Im oberfränkischen Gundelsheim belebt seit dem Spätsommer 2020 die neue Bücherei die Ortsmitte: Aus einem ortstypischen Bauernhaus mit Stall aus dem 19. Jahrhundert ist durch Umbau und einen Neubau ein vielseitiges Zentrum für die Gemeinde entstanden. Denn nicht nur eine Medienausleihe, sondern einen Ort der Begegnung und Weiterbildung, »einen Kulturort und eine Integrationsschmiede« zu schaffen, war der Wunsch des Bürgermeisters Jonas Merzbacher für die Bücherei. Mit zeitgemäßer Architektur, die sich gleichsam in die gegebene Stadtgestalt einfügt. Mit Schlicht Lamprecht Architekten gewann ein in der Region ansässiges Büro den Wettbewerb, das den Anspruch verfolgt, die bestehenden Strukturen sichtbar zu lassen und neue Nutzungen mit zeitlosen aber zeitgemäßen Materialien, wie hier dem Holzbau, einzufügen. Die »Haus im Haus« Idee verwebt dabei mit spannenden Raumbezügen alte und neue Elemente.
Ein Modellprojekt für Innenentwicklung

Die Bücherei ist ein herausragendes Beispiel dafür, dass baukultureller Anspruch und die Umsetzung qualitativ hochwertiger Architektur auch jenseits der Ballungszentren möglich sind. Darüber hinaus steht die Gemeinde Gundelsheim mit der Entscheidung zum Ideen- und Realisierungswettbewerb als Einladungswettbewerb beispielhaft dafür, kleineren und jüngeren Architekturbüros im Rahmen der immer komplexer werdenden Verfahren eine Chance zu geben, Bauaufgaben zu realisieren und die nötige Erfahrung in der Praxis zu sammeln. Nicht nur als ein gelungenes Architekturprojekt, sondern auch auf der Ebene der Entscheidungsträger soll das Projekt motivieren, inspirieren und zur Nachahmung anregen. Die Bücherei Gundelsheim ist ein »Best Practice« für die Innenentwicklung und baukulturelle Qualität im ländlichen Raum. Und für die Nutzer in Gundelsheim und in der Region ein neuer Treffpunkt und Ort der Begegnung.
Fortschreibung des Stadtgefüges

Für die neue Bücherei sollte das ortsbildprägende Bauernhaus mit Stall aus dem 19. Jahrhundert saniert sowie in den Um- und Neubau miteinbezogen werden. Giebelständig an der Bachstraße und damit in unmittelbarer Nähe zum Leitenbach und dem Ortskern auf der nördlichen Uferseite, reiht sich das historische Gebäude in die Nachbarbebauung ein. Mit ihrem Entwurf für den Neubau der Bücherei gelingt es Schlicht Lamprecht Architekten, auf behutsame Weise die Maßstäblichkeit und Körnung des Ortbildes aufzugreifen und wie selbstverständlich fortzuschreiben.
Die Architektur



Themen des Projekts
Bauen im ländlichen Raum • Innenentwicklung • Leerstand • Städtebauförderung • Vergabeverfahren / Wettbewerbswesen • Bauen im Bestand • Holzbau • Architektur für Kinder und Jugendliche • Flexibles Nutzungskonzept • Wandelbares Mobiliar • Bücherei als Begegnungsort



Gefördert und unterstützt durch




Fotografien © Stefan Meyer
Bilder können honorarfrei unter Angabe des Copyrights für Print und digital verwendet werden; bei Interesse an weiteren Bildern bitte den Fotografen kontaktieren: mail@stefanmeyer-architekturfotografie.de
Planmaterial © Schlicht Lamprecht Architekten
Planmaterial kann honorarfrei unter Angabe des Copyrights für Print und digital verwendet werden; bei Interesse an weiteren Zeichnungen inkl. Details bitte die Architekten kontaktieren: info@schlichtlamprecht.de



Neugierig?
Dann besuchen Sie die Bücherei Gundelsheim doch in einem virtuellen Rundgang.
